Albergo in vendita

Riccione, Viale G. Paisiello - Alba
36 locali 36 locali
1700 Mq 1700 Mq
36 bagni 36 bagni

Albergo in vendita

Riccione, Viale G. Paisiello - Alba

Descrizione annuncio

RICCIONE,

Situato nel cuore di Riccione, a 150 metri dalla spiaggia in posizione strategica, rinomato albergo 3 stelle in vendita.

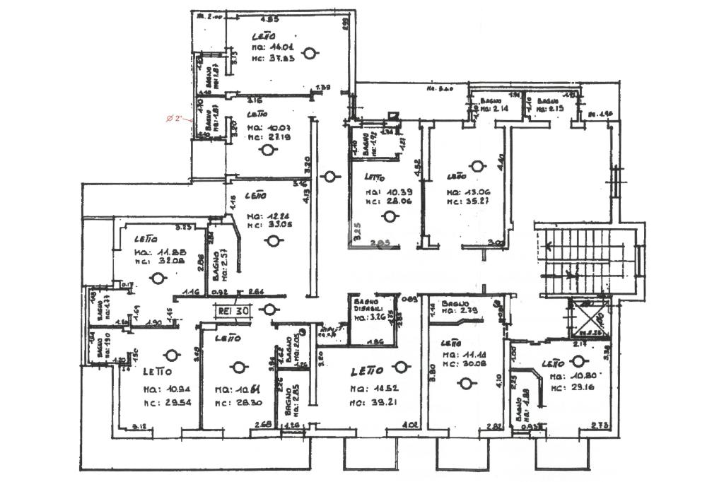
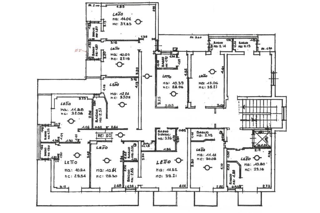
La struttura si sviluppa su 6 livelli e dispone di 36 stanze tutte dotate di servizi e balcone privato.

Si estende su una superficie commerciale di 1.700 mq ca. ed è completo di ampia veranda per colazioni e spettacoli serali.

Parcheggio privato. A completare l'albergo ampi terrazzi al 3° livello e lastrico solare vista mare al 5°.

FISSA SUBITO UN APPUNTAMENTO PER VISIONARE QUESTO IMMOBILE: 0541-601154.

Ogni agenzia ha un proprio titolare ed è autonoma.

Mostra tutto

Nelle vicinanze

Trasporto pubblico Trasporto pubblico
stazione di Riccione
stazione di Riccione
1,4 Km
Palestrina
Palestrina
90 m
Cimarosa
Cimarosa
130 m
Ricariche auto elettriche Ricariche auto elettriche
Eneldrive Giulio Cesare
1,2 Km
Riccione Hotel Augustus
1,5 Km
Hotel Ambasciatori
2,0 Km
Eneldrive Cetacea
2,6 Km
Distributore e+
3,0 Km
Scuole Scuole
Scuola dell'Infanzia Mimosa
530 m
Liceo Scientifico Statele Alessandro Volta
860 m
Scuola Media Giovanni Pascoli
870 m
Scuola Primaria Annyka Brandi
870 m
Istituto Professionale Alberghiero Statale S. Savioli
920 m
Farmacia Farmacia
Parafarmacia Dante
90 m
Farmacia dell'Alba
160 m
Farmacia comunale 3
480 m
D'Annunzio
600 m
Erboristeria l'alchimista
830 m
Ospedali Ospedali
Ospedale Ceccarini
1,6 Km
Supermercati Supermercati
Una Chicca
180 m
Le Primizie
260 m
Self Market
330 m
Supermercato
480 m
Market Portofino
560 m
Negozi Negozi
La gruccia
40 m
Week-End
40 m
Rentreè
50 m
Dress Up
60 m
Indiana mini market
70 m
Bar Bar
Mint Hookah Lounge
170 m
Jazz
180 m
BMC
230 m
Nikka
320 m
La clinica
540 m
Ristoranti Ristoranti
Mozzarella e basilico
40 m
La bottega del pesce
60 m
La botte
80 m
Gastronomia Fabbri
120 m
Gran fritto
130 m
Mostra tutto

Caratteristiche

Rif.:
61149396
Piano:
Su più livelli di 5 con ascensore
Totale piani:
5
Posti auto:
10
Balconi:
36
Condizionamento:
Autonomo
Mostra tutto
Prezzo Prezzo
€ 2.150.000
Rata mutuo Rata mutuo
€ 10.131 / mese
Spese annue Spese annue
€ 0
Anche in affitto a
Proponi il tuo prezzoProponi il tuo prezzo

Altre caratteristiche

Descrizione dei locali
Bagno Con Finestra

Classe Energetica

G
G
G
G
G
G
G
G
G
EP invernale del fabbricato:
EP estiva del fabbricato:
Anno di costruzione:
1970
Riscaldamento:
Autonomo
Tipo impianto:
Ad aria
Tipo alimentazione:
Altro

Ti interessa visionare l'immobile?

Fissa un appuntamento  Fissa un appuntamento

Richiedi informazioni

Clicca su Leggi per aprire l'informativa
* Questi campi sono obbligatori

Calcola il tuo mutuo

Semplice e senza impegno
Anticipo

( % )
Mutuo

( % )

pochi semplici passi

inserisci i tuoi dati
Questionario completato
Grazie per aver richiesto un appuntamento senza impegno con un nostro Consulente del Credito e Assicurativo.

Hai inserito correttamente tutti i dati necessari e a breve riceverai una e-mail con un link da convalidare per inviare i tuoi dati.
Affiliato
Studio Riccione Centro Srl
Prossima Apertura, 47838 Riccione (RN)

Il nostro staff


  • Massimo De Luca
    Affiliato
Prossima Apertura, 47838 Riccione (RN)
Zona: Riccione-Misano Adriatico-Coriano-Morciano-Cattolica-San Clemente
Mostra su mappa
Orari: Dal Lunedì al Venerdì dalle ore 9:00 alle ore 13:00 e dalle ore 15.30 alle ore 19.30. Sabato dalle ore 9:00 alle ore 13:00 e dalle ore 15:00 alle ore 18:00
Affiliato
Studio Riccione Centro Srl
Prossima Apertura, 47838 Riccione (RN)

2026 Tecnocasa Franchising S.p.A. - P. IVA 08365160152 - Via Monte Bianco 60/A 20089 Rozzano (MI). Ogni agenzia ha un proprio titolare ed è autonoma. Privacy policy | Policy utilizzo | Cookie policy