Attività in vendita

Riccione, Viale G. Verdi - Alba
€ 135.000
Prezzo aggiornato
2 locali 2 locali
60 Mq 60 Mq
1 bagno 1 bagno

Attività in vendita

Riccione, Viale G. Verdi - Alba

Descrizione annuncio

RICCIONE,

Nel cuore della vivace località Alba mare, su strada privilegiata, di collegamento tra Viale Dante e Viale Tasso e a pochi passi dal mare,

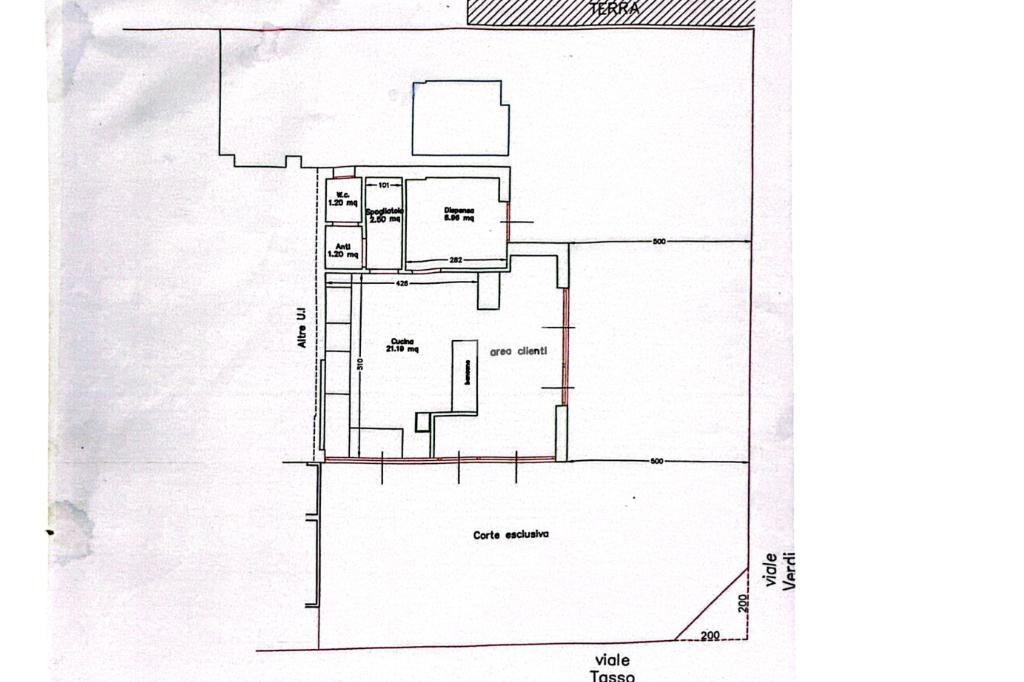
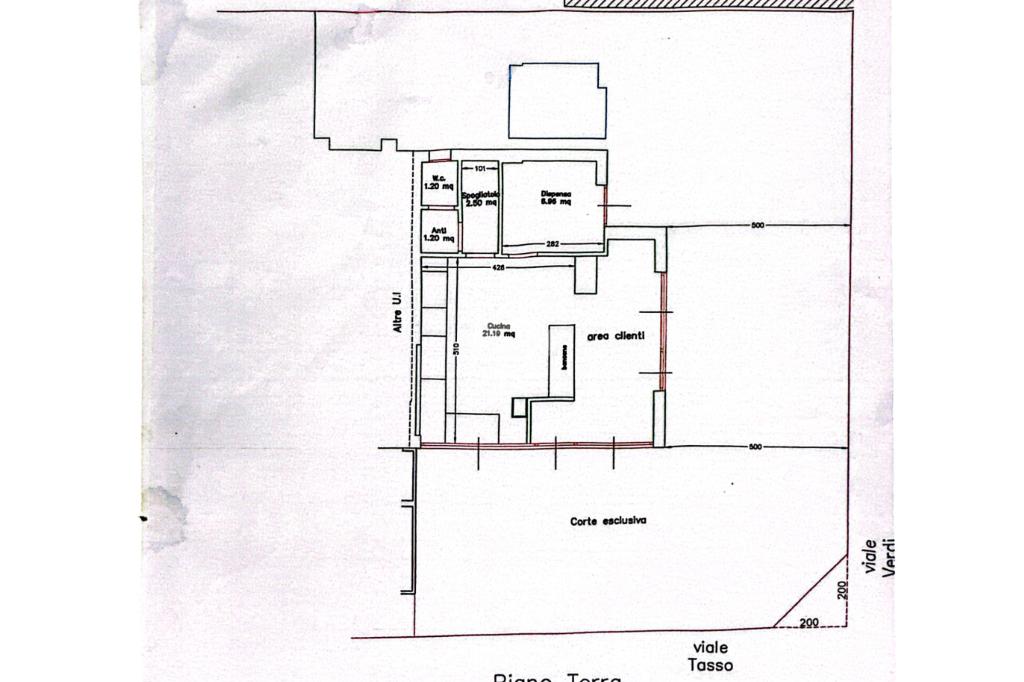
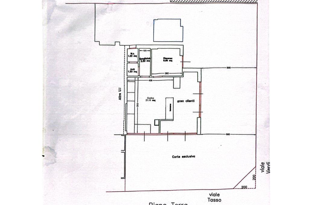
Attività commerciale di ca 60 mq in vendita al piano terra con scoperto privato e 2 posti auto in prestigioso stabile costruito nel 2009.

Essendo situato su strade pedonali principali, l'immobile gode di una posizione strategica che garantisce un flusso costante di passanti, ideale per attività che necessitano di visibilità e accesso immediato.

Un ulteriore punto di forza è l'ampio spazio esterno privato di oltre 100 mq, perfetto per espandere l'attività all'aperto o per creare un'area accogliente per i clienti, ideale anche per aperture annuali.

La costruzione recente assicura standard moderni e ambiente ben curato, pronto per essere personalizzato secondo le esigenze dell'attività, che può variare facilmente in base alle esigenze della clientela.

Questa opportunità rappresenta la scelta ideale per l'imprenditoria che desidera investire in una zona dinamica e in continua crescita, con il vantaggio di una posizione centrale e ben collegata.

La vendita comprende tutti i beni strumentali e le licenze attive, con possibilità di aquisto ulteriore dei marchi registrati.

FISSA SUBITO UN APPUNTAMENTO PER VISIONARE QUESTO IMMOBILE: 0541-601154.

Ogni agenzia ha un proprio titolare ed è autonoma.

Mostra tutto

Nelle vicinanze

Trasporto pubblico Trasporto pubblico
stazione di Riccione
stazione di Riccione
1,7 Km
Alba Azzarita
Alba Azzarita
140 m
Cimarosa
Cimarosa
190 m
Ricariche auto elettriche Ricariche auto elettriche
Eneldrive Giulio Cesare
1,3 Km
Riccione Hotel Augustus
1,8 Km
Hotel Ambasciatori
2,3 Km
Distributore e+
2,9 Km
Eneldrive Cetacea
2,9 Km
Scuole Scuole
Scuola Primaria Annyka Brandi
570 m
Scuola dell'Infanzia Mimosa
580 m
Scuola Media Giovanni Pascoli
970 m
Liceo Scientifico Statele Alessandro Volta
980 m
Istituto Professionale Alberghiero Statale S. Savioli
1,1 Km
Farmacia Farmacia
Farmacia dell'Alba
160 m
D'Annunzio
320 m
Parafarmacia Dante
380 m
Erboristeria l'alchimista
650 m
L'omeopatica sanitaria
730 m
Ospedali Ospedali
Ospedale Ceccarini
1,8 Km
Supermercati Supermercati
Le Primizie
80 m
Una Chicca
150 m
Market Portofino
360 m
Euromarket
450 m
Self Market
630 m
Negozi Negozi
Trasparenze intimo
40 m
Eliss
70 m
Asif mini market
80 m
Lucky☆Star
80 m
Negozi
80 m
Bar Bar
Jazz
140 m
Mint Hookah Lounge
150 m
Nikka
170 m
La clinica
350 m
BMC
530 m
Ristoranti Ristoranti
Sushi Sekai
20 m
Alba
60 m
Vertigo
90 m
Spaghetteria n.5
160 m
Rugantino
200 m
Mostra tutto

Caratteristiche

Rif.:
61109221
Piano:
Terra di 5
Totale piani:
5
Posti auto:
2
Condizionamento:
Autonomo
Ascensore:
No
Mostra tutto
Prezzo Prezzo
€ 135.000
Rata mutuo Rata mutuo
€ 624 / mese
Spese annue Spese annue
€ 500
Proponi il tuo prezzoProponi il tuo prezzo

Altre caratteristiche

Descrizione dei locali
Bagno Con Finestra

Classe Energetica

Questo immobile è esente da classe energetica
Anno di costruzione:
2009
Riscaldamento:
Autonomo
Tipo impianto:
Ad aria
Tipo alimentazione:
Altro

Prezzo ridotto di €1 (40%%)

Ti interessa visionare l'immobile?

Fissa un appuntamento  Fissa un appuntamento

Richiedi informazioni

* Questi campi sono obbligatori

Calcola il tuo mutuo

Semplice e senza impegno
Anticipo

( % )
Mutuo

( % )

pochi semplici passi

inserisci i tuoi dati
Questionario completato
Grazie per aver richiesto un appuntamento senza impegno con un nostro Consulente del Credito e Assicurativo.

Hai inserito correttamente tutti i dati necessari e a breve riceverai una e-mail con un link da convalidare per inviare i tuoi dati.
Affiliato
Studio Riccione Centro Srl
Prossima Apertura, 47838 Riccione (RN)

Il nostro staff


  • Massimo De Luca
    Affiliato
Prossima Apertura, 47838 Riccione (RN)
Zona: Riccione-Misano Adriatico-Coriano-Morciano-Cattolica-San Clemente
Mostra su mappa
Orari: Dal Lunedì al Venerdì dalle ore 9:00 alle ore 13:00 e dalle ore 15.30 alle ore 19.30. Sabato dalle ore 9:00 alle ore 13:00 e dalle ore 15:00 alle ore 18:00
Affiliato
Studio Riccione Centro Srl
Prossima Apertura, 47838 Riccione (RN)

2025 Tecnocasa Franchising S.p.A. - P. IVA 08365160152 - Via Monte Bianco 60/A 20089 Rozzano (MI). Ogni agenzia ha un proprio titolare ed è autonoma. Privacy policy | Policy utilizzo | Cookie policy